Melville Site Improvements: June 18, 2018

On June 18, your Board of Trustees approved plans for site improvements to Melville to begin this summer. John Tanzi Architects have been hired to execute the approved drawings below. Plan to see upgrades to the parking lot including curbs, sidewalks, book drop, signage, landscaping and lighting.

Melville parking lot overview

Success! Thank you for your support!
YES: 1255    NO: 632

Your Library Board of Trustees

Board of Trustees headshots

FAQs

Q. How will a new library benefit the community?
The current library was built in the 1960s. There are technological and structural advances that this building can no longer accommodate. Our community deserves the best, most up-to-date library building, featuring:

  • Fully accessible for all – ADA compliant
  • Elevator available for public use
  • Wider book rows
  • Modern restroom facilities
  • Safe sidewalks and stairs
  • More meeting rooms
  • Quiet study rooms
  • Comfortable seating areas
  • Flexible space for children, teens and adults
  • Technology advancements such as meshed Wi-Fi and digital check-in for meetings
  • More room for digital makerspace/classroom

Q. How much will this cost?
The bond proposal for $14,500,000 will cost a typical household $3.85 per month, less than $1 a week. This equates to $46.20 per year. Stop by the Reference Desk to discover how much it will cost you.

Q. Where will the new library be located?
The new library will be built to meet your needs at its current location at 55 Vanderbilt Parkway, Dix Hills.

Q. How will this affect me?
This decision will have little effect on your library use. We will continue to offer A+ services and programs to library patrons from a fully staffed alternate location and our Melville building.

Q. Where will the library relocate during construction?
The library will relocate to a fully staffed alternate location during construction, and our Melville Branch will be open.

Q. What are the plans for the Melville Branch?
The Trustees voted to commit funds from capital reserves to improve our Melville Branch. Look for interior and parking lot upgrades as well as a lovely outdoor reading space for all ages.

Melville parking lot overview

Q. How long until the new library is built?
The first phase is delivering final detailed drawings to the NYS Education Department (SED). After SED approval, bids will be received for work. After this phase, the library will move to a temporary location for approximately 15-18 months while construction takes place. The entire process could take from 2½ to 3 years from Oct. 3, 2017.

Q. Who is the architect?
Peter Gisolfi Associates is an award-winning firm of architects known for the design of public and academic libraries, campuses, municipal buildings, hotels and restaurants.

Q. Where will my kids go after school?
We are committed to providing continuous access to library services for all students in the district.

Q. Will there be more parking?
Yes, we are working with the architects to increase the amount of parking spaces that our property will allow which would be from 12-20 additional spaces.

Average Cost

How much will this cost?

The bond proposal for $14,500,000 will cost a typical household $3.85 per
month, less than $1 a week. This equates to $46.20 per year.

Use the formula, stop by the Reference Desk or visit the websites
below if you’d like to learn approximately how much it will cost you.

If you live in the Town of Babylon the multiplier is .55 cents. A home assessed
at $6,000 will pay $33.00/year or $2.75/month (60 ✕ .55). https://goo.gl/No7qXb

If you live in the Town of Huntington the multiplier is .77 cents. A home assessed at $6,000 will pay $46.20/year or $3.85/month (60 ✕ .77). https://goo.gl/47r3Yj

Dear Residents

Helen M. Crosson, Library Director headshot

Imagine your family enjoying a public library for the 21st century.

Imagine a building with energy efficiency built-in, a place for reading, learning, exercising, music, recording, creating and gathering.

Imagine a space filled with natural light and plenty of spaces for simultaneous meetings, classes and workshops.

Imagine children, parents and grandparents sharing stories and crafts, creating memories to last a lifetime.

Imagine state-of-the-art technology to meet your needs today and tomorrow.

Please attend community meetings and discover how you can get the public libraries you deserve in Dix Hills and Melville.

If you have any questions, suggestions or concerns, please contact me at 631-421-5940 or email me at hcrosson@hhhlibrary.org.

Hope to catch you reading,

Helen M. Crosson, Library Director signature

Helen M. Crosson, Library Director

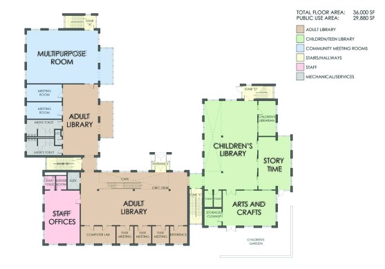
Building Plans

First floor floor plans

Published by on September 15, 2020
Last Modified December 15, 2025